THERAPIEZENTRUM BODENSEE
Einbau eines Therapiegebäudes in eine stillgelegte Forsthalle, Heiligenberg
Status: 2025 Fertigstellung
Bauherr: privat
Leistungsphasen: 1 - 8
Flächen / Volumen: BGF 1'050 m²
Bilder: KOSA, Isabel Mayer
Im Rahmen der Holzbauoffensive Baden-Württemberg freuen wir uns über eine erfolgreiche Nominierung für den Holzbaupreis 2026!
Lageplan
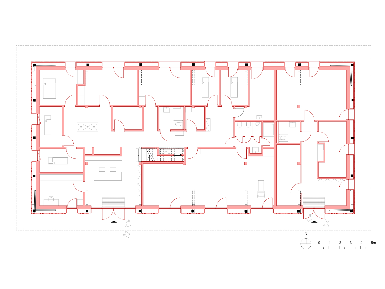
Erdgeschoss
Obergeschoss
Querschnitt
Am Ortseingang von Heiligenberg wurde eine ehemalige forstwirtschaftliche Werkstatt aus den 1930er Jahren zu einem Therapiezentrum umgenutzt. Das Gebäude steht exemplarisch für viele einfache Zweckbauten im ländlichen Raum, die über Jahrzehnte funktional genutzt wurden und deren konstruktive Qualitäten heute häufig unterschätzt werden.
Vor diesem Hintergrund wurde bewusst auf Abriss oder eine vollständige bauliche Überformung verzichtet. Stattdessen verfolgt das Projekt den Entwurfsansatz, sich in die bestehende Gebäudestruktur einzunisten, ohne es zu beschädigen. Ähnlich wie die Biologie die Entökie beschreibt.
Dieses Prinzip ermöglicht einen differenzierten Umgang mit Alt und Neu. Im Erdgeschoss durchdringen gezielte Öffnungen für Licht, Luft und Erschließung die bestehende Struktur und verbinden das neue Innere mit dem Äußeren direkt. Im Obergeschoss entsteht zwischen äußerer Hülle und innerem Neubau ein unbeheizter, wettergeschützter Zwischenraum. Dieser Bereich erweitert das Nutzungsspektrum jenseits der thermischen Hülle, bietet Aufenthaltsqualität und inszeniert das Spiel zwischen historischem Holzbau und neuem Einbau.
Konstruktiv blieb die bestehende Holztragstruktur vollständig erhalten. Auch die historischen Punktfundamente konnten bewahrt und in eine neue Bodenplatte integriert werden. Wo erforderlich, wurde das Tragwerk behutsam instandgesetzt und statisch ertüchtigt, ohne seine ursprüngliche Logik zu verändern. Dachhaut und Fassadenbekleidung wurden unabhängig von der Tragstruktur erneuert. Ein umlaufendes Lichtband im oberen Fassadenbereich sorgt für eine gleichmäßige Belichtung und natürliche Belüftung der Zwischenzone sowie der dahinterliegenden Therapieräume.
Der neue Einbau wurde konsequent als Holzbau umgesetzt. Vorgefertigte Wandelemente und eine klassische Deckenbalkenkonstruktion ermöglichten eine präzise Ausführung, kurze Bauzeiten und minimale Eingriffe in den Bestand. Holz fungiert dabei nicht nur als tragender Baustoff, sondern prägt auch Atmosphäre, Akustik und Raumwahrnehmung im Inneren. Die Nachhaltigkeit bei diesem Projekt ergibt sich unmittelbar aus dem gewählten Umgang mit dem Bestand. Der vollständige Erhalt der Tragstruktur vermeidet Abbruchabfälle, reduziert den Materialeinsatz und spart einen erheblichen Anteil grauer Energie sowie CO₂-Emissionen ein. Der innere Neubau ist so ausgeführt, dass er auch in Zukunft vielfältige Nutzungsänderungen zulässt und auch rückstandfrei wieder ausbaubar ist. Die Außenanlagen beschränken sich auf das Notwendige, minimieren versiegelte Flächen und fördern Versickerung und Verdunstung.
Heute beherbergt das Gebäude Ergo- und Physiotherapie, Logopädie sowie ein Frühförderzentrum. Die Nutzungen sind offen organisiert und teilen gemeinschaftliche Bereiche, wodurch kurze Wege und flexible Abläufe entstehen. Mit diesem Projekt ist es uns gelungen, innerhalb von vier Monaten mit einfachen Mitteln und handwerklichen Details ein Gebäude zu errichten, dass besonders im Umgang mit vergleichbaren Bestandsgebäuden einen Modellcharakter darstellen kann.
Foto Isabel Mayer
Foto Isabel Mayer
Foto Isabel Mayer
Foto Isabel Mayer
Foto Isabel Mayer
Foto Isabel Mayer
Foto Isabel Mayer
Foto Isabel Mayer
Forstwerkstatt... Rückbau der Hülle... Einbau neuer Räumlichkeiten... the Schёuer
